Inwestycja znajduje się przy ul. Płomyka 3 w Warszawie. To okolica, w której mieści się wszystko, czego potrzeba na co dzień do wygodnego życia – sklepy, punkty usługowe, tereny rekreacyjne, przedszkola, szkoły, przychodnie i wiele innych ważnych lokalizacji. Dużym atutem położenia domów jest również bliskość Alei Jerozolimskich, które zapewniają bardzo wygodny i szybki dojazd do ścisłego centrum miasta.Rozwiń ∨
Możesz więc bardzo swobodnie podróżować do wszystkich kluczowych punktów na mapie Warszawy, oszczędzać czas na dojazdach do pracy oraz aktywnie brać udział w wielu ciekawych wydarzeniach. Czerpiesz pełnymi garściami z wyjątkowej energii stolicy, mieszkając jednocześnie w spokojnym, cichym i zielonym miejscu. Zwiń ∧
Idea angielskich miast-ogrodów została stworzona już w XIX wieku. Jej założeniem było połączenie zalet miasta (praca, rozrywka) i wsi (kontakt z naturą) na jednym obszarze. Podobne rozwiązania zastosowano w dzielnicy Włochy, w której znajdują się domy przy Płomyka 3. Miejsce to charakteryzuje się niską zabudową otoczoną zielenią. Jest bezpiecznie, spokojnie i cicho – możesz w komfortowych warunkach odpocząć po pracy.Rozwiń ∨
Nie brakuje również terenów rekreacyjnych. Inwestycja znajduje się w sąsiedztwie urokliwego Parku ze Stawami Cietrzewia. Niedaleko także Park Kombatantów, Stawy Koziorożca, liczne place zabaw, boiska i inne miejsca, w których aktywnie spędzisz czas z bliskimi. Zwiń ∧
Płomyka 3 to kameralna inwestycja, powstająca w bezpośrednim sąsiedztwie Miasta-Ogrodu Stare Włochy, w spokojnej okolicy, z doskonałym dostępem do centrum Warszawy. Obejmuje tylko 4 nowoczesne domy w zabudowie bliźniaczej dwulokalowej. Każdy z nich ma aż 281 m² powierzchni!
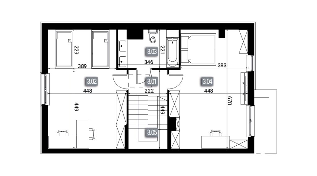
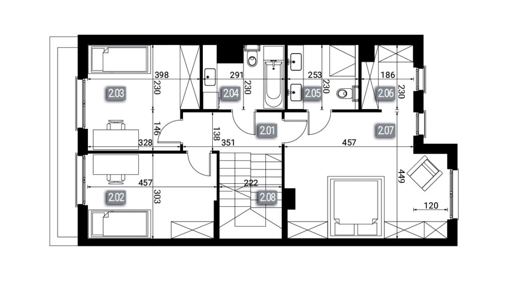
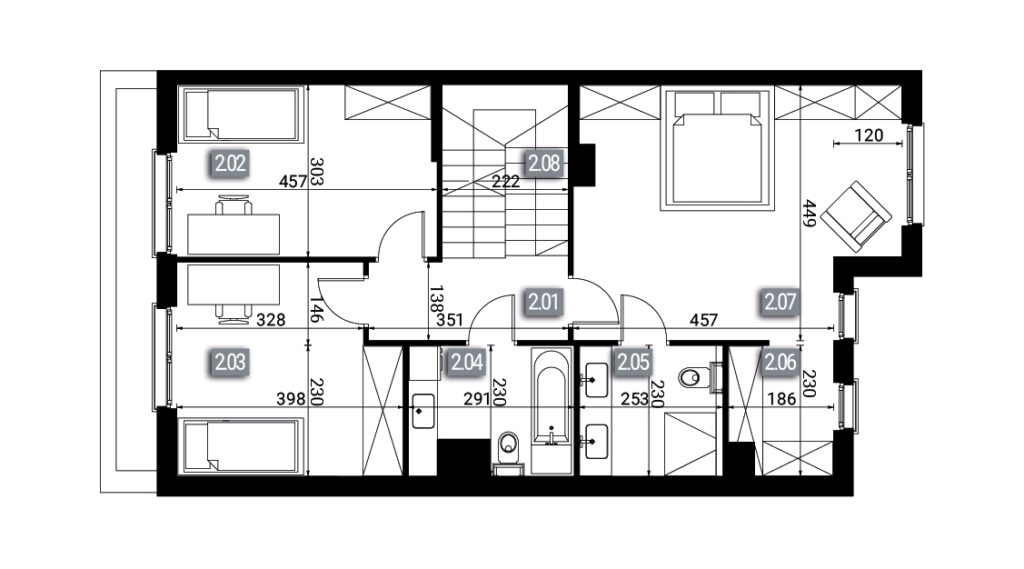
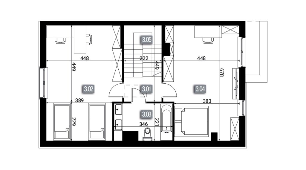
Zobacz domyCzeka na Ciebie m.in. słoneczny, przestronny salon z otwarta kuchnią, 5 sypialni, 4 łazienki oraz pomieszczenie techniczne.Nigdy nie będziesz mieć problemów z parkowaniem samochodu – na najniższej kondygnacji mieści się dwustanowiskowy garaż. Układ wnętrza domu jest bardzo elastyczny. Na aktualnym etapie inwestycji możesz komfortowo dopasować go do swoich potrzeb.
Budynek wyróżnia nowoczesna, bardzo estetyczna forma architektoniczna, dbałość o detale oraz wysoka klasa zastosowanych materiałów. Do Twojej dyspozycji jest również duży taras, na który wychodzi się przez olbrzymie okno w systemie HS, przyjemnie otwierające salon na ogród. Powierzchnia prywatnej działki do dowolnego zagospodarowania wynosi od 278 m² do 448 m².
Zobacz dostępnośćDomy są niezwykle bogato wyposażone w standardzie deweloperskim premium – obejmuje on m.in. fotowoltaikę, klimatyzację, okna antywłamaniowe z roletami zewnętrznymi, system alarmowy, monitoring oraz stację ładowania pojazdów elektrycznych. Dostępny jest również system smart home, umożliwiający stacjonarne i zdalne sterowanie poszczególnymi funkcjami domu – oświetleniem, ogrzewaniem, wideodomofonem, alarmem, roletami zewnętrznymi czy też kamerami.Rozwiń ∨
| Nr.Numer | Typ | PtPiętro | Pok.Pokoje | Pow.Pow | DziałkaPow. działki | ExtraBalkon/Taras | BudynekBudynek | DostępnośćDostępność | Cena | Plan | |
|---|---|---|---|---|---|---|---|---|---|---|---|
| 1 | B | 0 | 6 | 281.23m2 | 446.02m2 | Brak | 2 | Sprzedane | NR:Nr:1 Typ: B Piętro: 0 Pokoje: 6 Pow:Pow: 281.23m2 Działka:446.02m2 Budynek: 2 Sprzedane | ||
| 2 | A | 0 | 6 | 281.23m2 | 278.64m2 | Brak | 2 | Sprzedane | NR:Nr:2 Typ: A Piętro: 0 Pokoje: 6 Pow:Pow: 281.23m2 Działka:278.64m2 Budynek: 2 Sprzedane | ||
| 3 | A | 0 | 6 | 281.23m2 | 278.49m2 | Brak | 1 | Sprzedane | NR:Nr:3 Typ: A Piętro: 0 Pokoje: 6 Pow:Pow: 281.23m2 Działka:278.49m2 Budynek: 1 Sprzedane | ||
| 4 | B | 0 | 6 | 281.23m2 | 448.85m2 | Brak | 1 | Sprzedane | NR:Nr:4 Typ: B Piętro: 0 Pokoje: 6 Pow:Pow: 281.23m2 Działka:448.85m2 Budynek: 1 Sprzedane |
Miejsce inwestycji:






















